全球网点
145㎡三室改两居,极简怎么装?看他家就够了!
日期:2021-06-20
|
4618

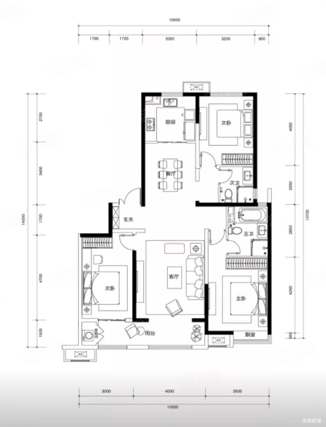
项目位于山西太原·保利心语,本案常住是一对年轻的小夫妻,女主人尤爱意式极简风格,希望房子在保持简约的基础上同时充满着色彩生活趣味,还想要拥有一个步入式衣帽间,于是设计师由145㎡空间的三室两厅改造成两室两厅+衣帽间,将室内功能配套完善,采用恰到好处的空间用色,使空间之间产生独特的生活情感互动。

玄关

▲进门有个小过渡“玄关”,几步就可到客餐厅中心区,由于玄关空间较小。所以以一幅抽象画直接营造入户氛围!

客厅

▲客厅以灰色为主调,电视背景墙采用拼接大理石搭配实木阑珊,与对立墙面形成撞色处理,既可以加深空间层次感,也提升了空间明亮度。一字型真皮沙发与实木电视柜中和了大空间的空旷,打造出一个谈心叙话的和谐空间。

阳台

▲阳台与客厅,用白色纱帘做隔断,划分区域的同时,又不影响空间通透性。凭借白色窗帘良好透光性,根据光线角度可自由调节,光影浪漫随手而来,时刻与自然来个亲密接触,已然成为了夫妻俩的周末小确辛~

餐厅

▲餐厅一面及顶的透明柜体,以简练的金属线条分割出收纳空间,让立面视觉更显精致干净。餐边柜设置了台面、全玻璃展示区以及隐藏收纳区,满足了日常生活中多样的收纳需求。

极简餐桌将意式工艺融入到现代时尚中,台面上岩板拥有的自然纹理,流转于桌脚流畅的线条中,质感优雅又深赋写意,为每一次用餐都增添一些浪漫。

主卧

▲床屏简约的线条与定制柜的功能设置让贴墙的艺术挂画,散发出优雅而大胆的美感。

▲主卧的每个区域都是根据业主意向精心打造。业主在主卧想要一些与众不同的色彩,所以大胆使用了色彩饱和度高的蓝绿,装饰则由色彩跳脱的鲜橙点缀,奇妙却和谐的混搭在空间中,视觉“冲突”感十足。

次卧

▲次卧选用拼色,传达出一种空间平衡美。这里的色彩相比于主卧更加平缓,视觉上也多了份轻巧。床屏与背景饰面组合出疏密有序的线条比例,诠释着一个精工而不流于艳俗,纯净而不至于过渡简约的精致卧房。

衣帽间

▲衣帽间是用一间房改造的,衣柜开放式的布局处理,不但释放了空间的狭隘,也营造出了具有观赏性的空间格局,浅灰色调打造柜体基底,凝练出现代简约的生活质感。柜体中安装感应灯带,光线流泻其中,衬托出材质的自然肌理,温润细致的实木与刚硬冷冽的低奢金属相互交织出一个极具质感的储物空间。

生活没有诗与远方的惬意,更多的是每日柴米油盐酱醋茶的琐碎,也正因如此,我们需要将家打造成一处温暖,舒适,充满生活色彩的避风港,自我治愈,不论房子大小,格局好坏,生活仪式感都应永不缺席!

往期推荐

160㎡都市大宅,颠覆你的空间想象!

全屋定制高端“玩”家,你是哪个段位?

实景案例|复古独栋别墅,惊艳了时光!

 

END

?

<返回列表
分享
ass="foot">

Copyright  2021  今年会jinnianhui金字招牌集团(中国)有限公司官网  All Rights Reserved  滇ICP备2021008224号